2-кімнатна квартира, 76.00 м2

Бориса Литвака вулиця, Приморський район

Переглянути інші пропозиції

ID 28610

Тип житла вторинка
Кількість кімнат 2
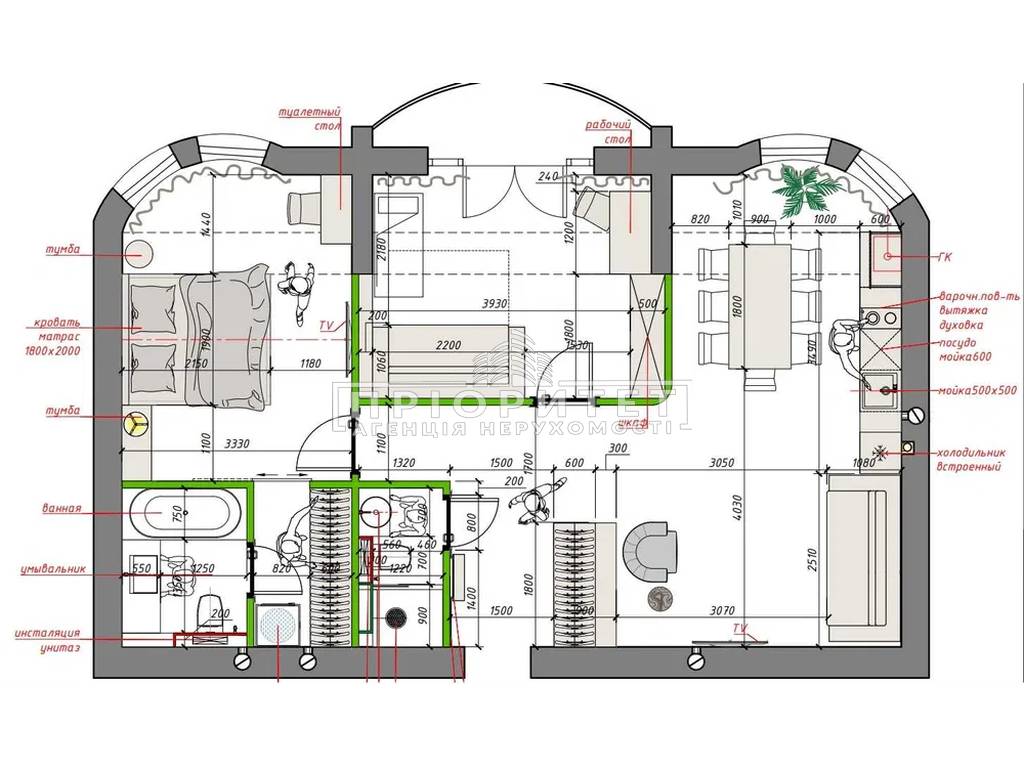
Загальна площа 76.00 кв.м.
Поверх 6
Поверхів в будинку 10
Матеріал будови цегла
Тип будинку новобуд
Новобудови Житловий комплекс "Віндзор"
Стан квартири від будівельників
Висота стелі 3.00 м
Опалення АОГВ
130 000 у.е.
5 590 000 ₴
  • usd
  • uah

Параметри квартири

  • Загальна

    76.00 м2

  • Житлова пл.:

    35.00 м2

  • Кухня:

    28.00 м2

  • Поверх

    6/10

  • Лоджія Лоджія

Филиал:

вул. Сегедська, 12

Опис об'екту

id28610 Квартира в престижному житловому комплексі «Віндзор», це один із найстильніших і найпопулярніших житлових комплексів в Одесі. Закрита територія, доглянуті зони відпочинку, сучасна архітектура і високий рівень сервісу створюють атмосферу комфорту і затишку з перших хвилин. Квартира від будівельників, але продумане планування, просторими світлими кімнатами та великими вікнами, що наповнюють простір природним світлом, вже зроблено згідно проекту. Проект передається новому покупцю. Кожна деталь продумана для комфортного життя. ЖК «Віндзор» - це: закрита територія з охороною та відеоспостереженням; сучасна вхідна група та швидкісні ліфти, дитячі та спортивні майданчики, підземний та гостьовий паркінг, розвинена інфраструктура та зручна транспортна розв'язка. Ідеальний варіант для комфортного проживання, так і для вигідної інвестиції.

Поділитися у соцмережах