2-кімнатна квартира, 58.57 м2

Фонтанська дорога, Приморський район

Повернутись до підбору

ID 29417

Тип житла будинок будується
Кількість кімнат 2
Загальна площа 58.57 кв.м.
Поверх 5
Поверхів в будинку 11
Матеріал будови керамічний блок
Тип будинку Новий будинок
Новобудови Житловий комплекс "Derby Style House"
Стан квартири від будівельників
Висота стелі 3.00 м
Опалення дахова котельня
74 384 у.е.
3 198 512 ₴
  • usd
  • uah

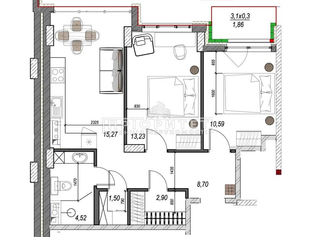
Параметри квартири

  • Загальна

    58.57 м2

  • Житлова пл.:

    23.82 м2

  • Кухня:

    15.27 м2

  • Поверх

    5/11

  • Балкон Балкон

Филиал:

вул. Сегедська, 12

Опис об'екту

ID 29417 Derby House - вибір тих, хто цінує архітектуру, якість та правильну локацію.
Квартира тут - це грамотна інвестиція в комфортне життя та ліквідну нерухомість. Функціональне планування, панорамні вікна та тераса формують простір, що легко адаптується під сучасний стиль життя. Стан від будівельників - це база для вашого стильного інтер'єру, Ви самі вирішуєте як виглядатиме ваш простір.

Такі квартири довго не чекають. Правильна локація в Одесі - це життя поряд з морем, парками і всією міською інфраструктурою. Телефонуйте - покажемо!

Поділитися у соцмережах