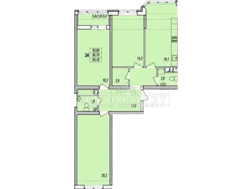
3-кімнатна квартира, 96.00 м2

Прохоровская вулиця, Центральний район

Переглянути інші пропозиції

ID 29111

Тип житла будинок готовий
Кількість кімнат 3
Загальна площа 96.00 кв.м.
Поверх 13
Поверхів в будинку 16
Матеріал будови Монолітно-каркасний
Тип будинку Новий будинок
Новобудови Житловий комплекс "Прохоровский квартал"
Стан квартири від будівельників
Висота стелі 3.00 м
Опалення дахова котельня
83 000 у.е.
3 569 000 ₴
  • usd
  • uah

Параметри квартири

  • Загальна

    96.00 м2

  • Житлова пл.:

    53.00 м2

  • Кухня:

    16.00 м2

  • Поверх

    13/16

  • Лоджія Лоджія

Филиал:

вул. Сегедська, 12

Опис об'екту

id 29111
Зданий житловий комплекс у безпосередній близькості до історичного центру Одеси. Стан квартири від будівельників. У квартиру заведено всі необхідні комунікації – електрика, опалення, вода, стояки безшумної каналізації. Встановлено лічильники. Сучасні пасажирські та вантажні ліфти, а також охоронна та пожежна сигналізації, індивідуальна котельня. У квартирі встановлені опалювальні прилади із терморегулюючим обладнанням. З вікон шикарний вид на місто. У пішій доступності супермаркети, дві загальноосвітні школи, музична школа, дитячі садки, дитячі майданчики, салони краси, фітнес клуби, поліклініки, бювет, два парки – «Прохорівський» (прогулянкові алеї) та «Михайлівський», де є церква та бювет. У 15 хвилинах ходьби розташований Одеський Зоопарк та ринок Привоз. Внутрішні двори впорядковані, оснащені дитячими та спортивними майданчиками, альтанками для пікніків та алеями для прогулянок.
Телефонуйте і ми організуємо показ у зручний час.

Поділитися у соцмережах