1-кімнатна квартира, 37.95 м2

Будівельна вулиця ( Ліманка ), Київський район

Повернутись до підбору

ID 9596

Тип житла будинок будується
Кількість кімнат 1
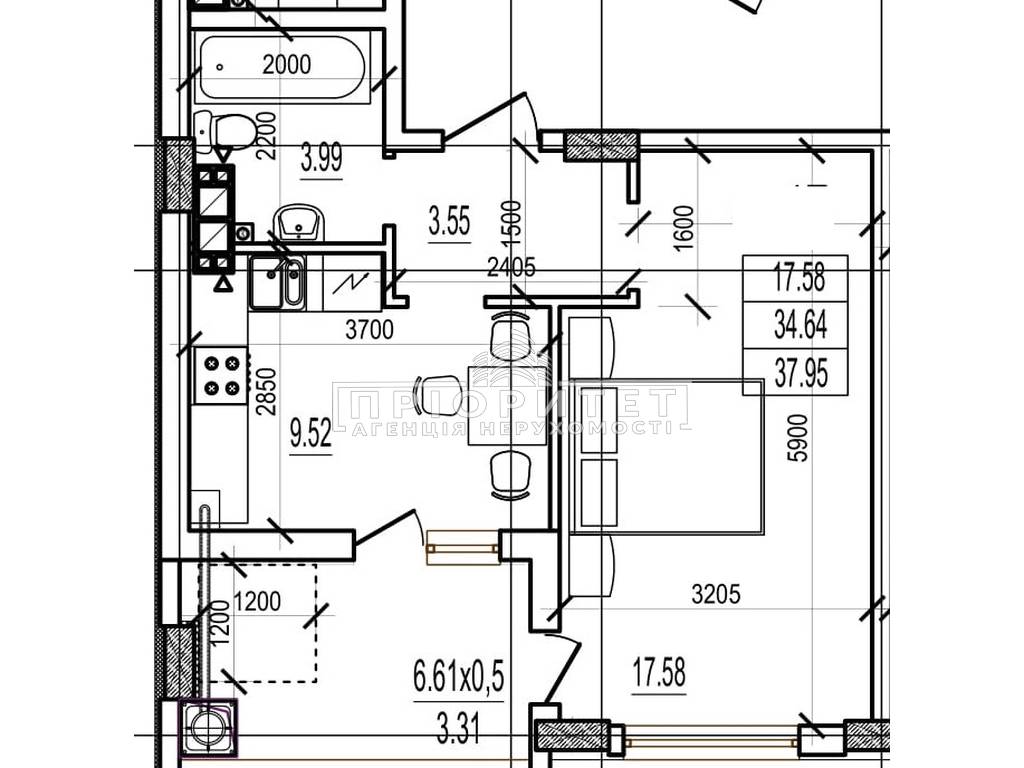
Загальна площа 37.95 кв.м.
Поверх 6
Поверхів в будинку 7
Матеріал будови Монолітно-каркасний
Тип будинку новобуд
Новобудови Житловий комплекс "Розенталь"
Стан квартири від будівельників
Висота стелі 2.80 м
Опалення дахова котельня
29 222 у.е.
1 110 436 ₴
  • usd
  • uah

Параметри квартири

  • Загальна

    37.95 м2

  • Житлова пл.:

    17.58 м2

  • Кухня:

    9.52 м2

  • Поверх

    6/7

  • Балкон Балкон

Филиал:

Відділ Новобудов

Опис об'екту

ID - 9596

Новий житловий комплекс, малої поверховості та гарними плануваннями.Сдача будинку в наступному році, є розтермування!

Прилади обліку (лічильники): газ, електрика, вода.
Підключено опалення, радіатори європейського виробництва.
Газ заведено у квартиру та підключено.
Електрика заведена у квартиру та підключена.
Вода заведена у квартиру та підключена.
Вікна та двері на лоджію: металопластикові.
Лоджії засклені.
Вхідні двері: броньовані.
Пожежна сигналізація.
Подвір'я: закрита територія.
Відеоспостереження.
Домофон.
Будинок утеплений.
На кожну секцію автономна газова котельня.
Для попереднього підігріву води на даху встановлені системи сонячних батарей, що забезпечує 30% економії газу та зниження тарифу на опалення та гарячу воду.
Газовий генератор для безперебійної роботи безшумного, швидкісного ліфта, підкачування води та освітлення парадних у разі відключення електрики.

Поділитися у соцмережах