2-кімнатна квартира, 52.13 м2

Непряма вулиця, Хаджибейський (Малиновський) район

Переглянути інші пропозиції

ID 29482

Тип житла будинок будується
Кількість кімнат 2
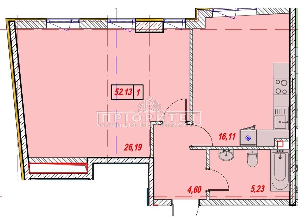
Загальна площа 52.13 кв.м.
Поверх 2
Поверхів в будинку 17
Матеріал будови Монолітно-каркасний
Тип будинку новобуд
Новобудови Багатофункціональний комплекс "TIMES"
Стан квартири від будівельників
Висота стелі 2.85 м
Опалення дахова котельня
52 130 у.е.
2 241 590 ₴
  • usd
  • uah

Параметри квартири

  • Загальна

    52.13 м2

  • Житлова пл.:

    26.19 м2

  • Кухня:

    16.11 м2

  • Поверх

    2/17

Филиал:

Відділ Новобудов

Опис об'екту

ID 29482 Ідеальний баланс динаміки центру та затишку тихого району.

У самому серці Одеса, поблизу центру та за кілька хвилин від Дерибасової, розташований сучасний багатофункціональний комплекс «Таймс». Це простір, де все продумано: від стильної архітектури до зручних планувань.
Пропонуємо квартиру вільного планування, оптимальної площі на комфортному поверсі, тут легко втілити формат під свій стиль життя. У кімнаті три вікна, можна розділити простір на дві окремі спальні або кабінет.

Будинок збудований, йдуть завершальні роботи. Влітку планується видача ключів. І найголовніше є розстрочка навіть після здачі будинку.

Цікаво, дзвоніть!

Поділитися у соцмережах