2-кімнатна квартира, 69.63 м2

Фонтанська дорога, Приморський район

Повернутись до підбору

ID 29416

Тип житла будинок будується
Кількість кімнат 2
Загальна площа 69.63 кв.м.
Поверх 3
Поверхів в будинку 11
Матеріал будови керамічний блок
Тип будинку Новий будинок
Новобудови Житловий комплекс "Derby Style House"
Стан квартири від будівельників
Висота стелі 3.00 м
Опалення дахова котельня
90 519 у.е.
3 892 317 ₴
  • usd
  • uah

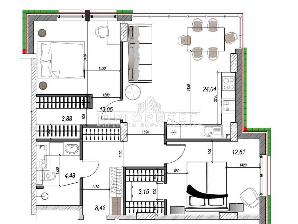
Параметри квартири

  • Загальна

    69.63 м2

  • Житлова пл.:

    25.66 м2

  • Кухня:

    24.04 м2

  • Поверх

    3/11

Филиал:

вул. Сегедська, 12

Опис об'екту

ID 29416 Фонтан - це завжди про статус та ліквідність.
А Derby House - один із тих комплексів, який посилює цінність самої локації. Близькість до моря, зручна логістика та розвинена інфраструктура роблять його ідеальним вибором як для життя, так і для інвестицій. Це вибір тих, хто цінує якість та естетику. Цегляні будинки, європейські стандарти будівництва, дизайнерські фасади та сучасні рішення роблять цей комплекс гідною альтернативою дорожчим об'єктам.

Квартира функціонального, продуманого планування - велика кухня вітальня для прийому гостей, дві окремі спальні, в кожній є вбиральня для зберігання речей. Панорамні вікна наповнюють квартиру природним світлом. Високі 3м стелі ще один плюс. А також у квартирі будуть відшпатльовані вже стіни (на даний момент у процесі), що суттєво економить на ремонті.

ЖК Derby House - це поєднання стилю, комфорту та правильної локації. До моря всього кілька хвилин, до центру швидкий доступ без пробок.

Поділитися у соцмережах