4-кімнатна квартира, 90.00 м2

М. Малиновського вулиця (Олексія Вадатурського)), Хаджибейський (Малиновський) район

Переглянути інші пропозиції

ID 29162

Тип житла вторинка
Кількість кімнат 4
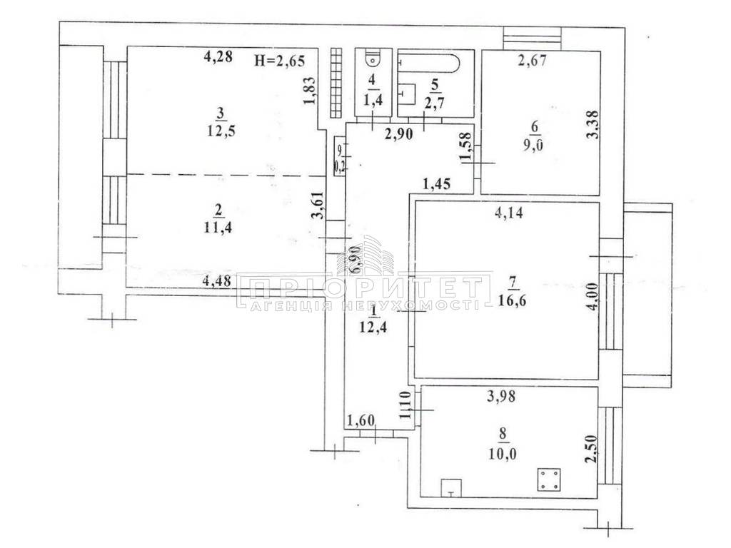
Загальна площа 90.00 кв.м.
Поверх 9
Поверхів в будинку 10
Матеріал будови цегла
Тип будинку Новий будинок
Стан квартири з ремонтом
Висота стелі 2.70 м
Опалення центральне
107 000 у.е.
4 601 000 ₴
  • usd
  • uah

Параметри квартири

  • Загальна

    90.00 м2

  • Житлова пл.:

    45.00 м2

  • Кухня:

    10.00 м2

  • Поверх

    9/10

  • Балкон Балкон
  • Лоджія Лоджія

Филиал:

Відділ Новобудов

Опис об'екту

id-29162 Красива світла квартира в самому Центрі Черемушок. Новий цегляний будинок із газом. Утеплена фасадом, обидві лоджії засклені. Гарний якісний ремонт. Продаж з усіма меблями та технікою, в кожній кімнаті кондиціонер, два бойлери-в санвузлі та на кухні. Три окремі спальні та кухня. Готовий варіант для життя. Квартира підходить під державні програми. У вартість входить гараж, що поряд з будинком, та комора, що знаходиться на поверсі. Дуже гарне розташування будинку. Поруч зупинка транспорту, великі магазини, школа та дитячий садок. Телефонуйте такі варіанти продаються дуже рідко!

Поділитися у соцмережах