1-кімнатна квартира, 35.70 м2

Сеченова провулок, Приморський район

Переглянути інші пропозиції

ID 29147

Тип житла вторинка
Кількість кімнат 1
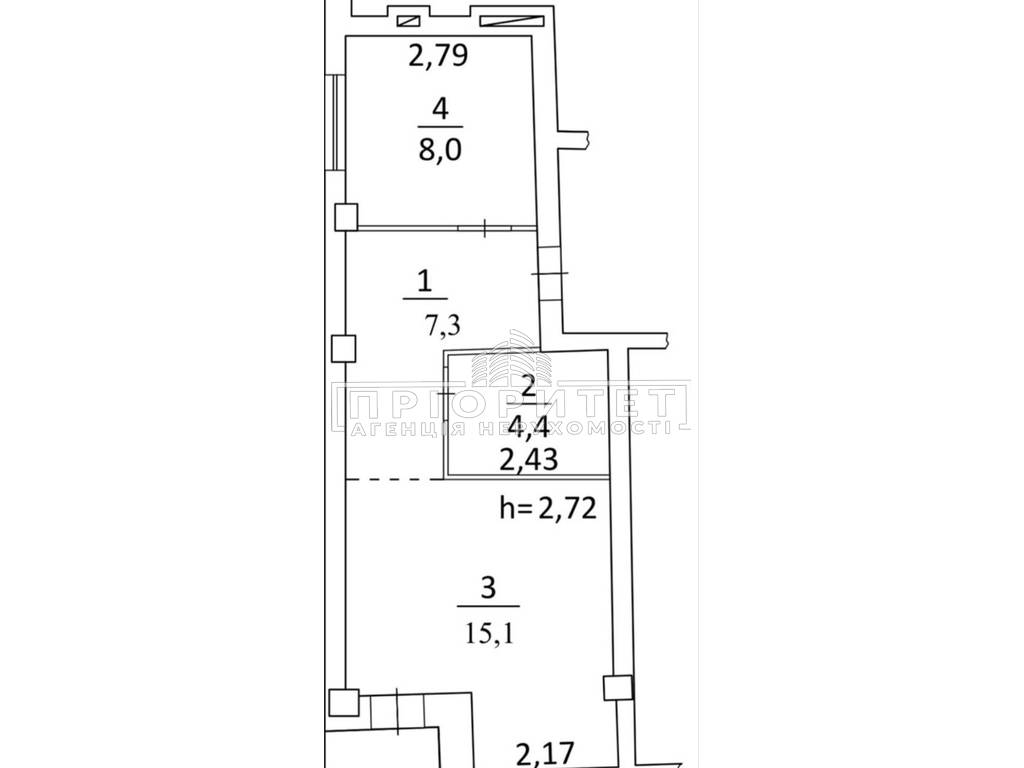
Загальна площа 35.70 кв.м.
Поверх 6
Поверхів в будинку 6
Матеріал будови Монолітно-каркасний
Тип будинку Новий будинок
Стан квартири від будівельників
Висота стелі 2.80 м
Опалення центральне
52 900 у.е.
2 274 700 ₴
  • usd
  • uah

Параметри квартири

  • Загальна

    35.70 м2

  • Житлова пл.:

    15.10 м2

  • Кухня:

    8.00 м2

  • Поверх

    6/6

Филиал:

вул. Інглезі, 2в, офіс 1033

Опис об'екту

ID-29147 Квартира в новому малоквартирному будинку поряд із центром міста. Будинок зданий. Квартира може від будівельників, всі комунікації заведені в квартиру. Гарний вид на вікна. Закритий двір, що охороняється. Поруч навчальні заклади. Відмінний варіант для студента чи здачі в оренду.

Поділитися у соцмережах