1-кімнатна квартира, 42.00 м2

Среднефонтанский провулок, Приморський район

Переглянути інші пропозиції

ID 29038

Тип житла будинок будується
Кількість кімнат 1
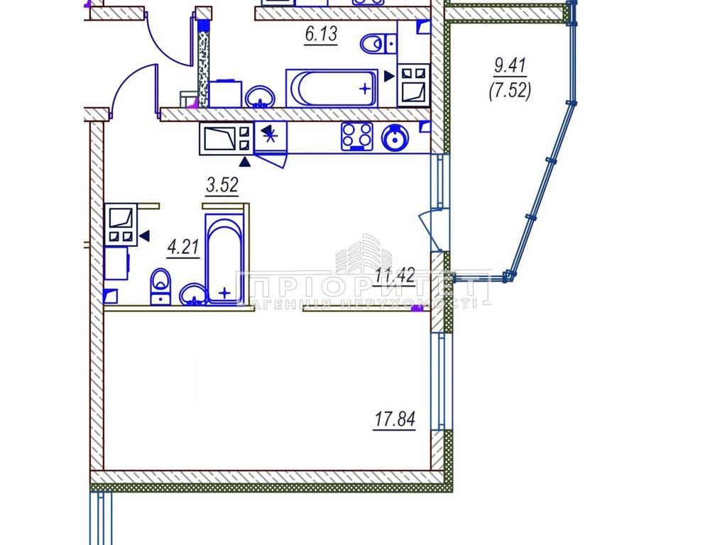
Загальна площа 42.00 кв.м.
Поверх 9
Поверхів в будинку 24
Матеріал будови Монолітно-каркасний
Тип будинку Новий будинок
Новобудови Житловий комплекс "Удобний"
Стан квартири від будівельників
Висота стелі 3.00 м
Опалення дахова котельня
43 000 у.е.
1 849 000 ₴
  • usd
  • uah

Параметри квартири

  • Загальна

    42.00 м2

  • Житлова пл.:

    18.00 м2

  • Кухня:

    10.00 м2

  • Поверх

    9/24

  • Лоджія Лоджія

Филиал:

вул. Інглезі, 2в, офіс 1033

Опис об'екту

ID-29038 Новий житловий комплекс "Зручний" поряд із центром міста. Гарний вид на вікна. Квартира в стані від будівельників, гарний вид із вікон. Велика лоджія засклена панорамним склінням. Будинок у процесі здачі. У будинку підземний паркінг, вхід по чіпах, охорона та відеоспостереження. Поруч магазини, супермаркети, торговельний центр, Привоз. Відмінний варіант для інвестиції можна здавати подобово.

Поділитися у соцмережах