2-кімнатна квартира, 72.50 м2

Небесної сотні ( М. Жукова ) проспект, Київський район

Переглянути інші пропозиції

ID 28906

Тип житла вторинка
Кількість кімнат 2
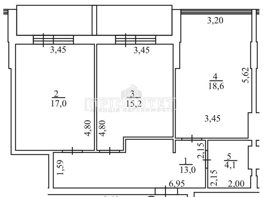
Загальна площа 72.50 кв.м.
Поверх 16
Поверхів в будинку 16
Матеріал будови Монолітно-каркасний
Тип будинку Новий будинок
Стан квартири з ремонтом
Висота стелі 2.80 м
Опалення дахова котельня
82 000 у.е.
3 526 000 ₴
  • usd
  • uah

Параметри квартири

  • Загальна

    72.50 м2

  • Житлова пл.:

    32.20 м2

  • Кухня:

    18.60 м2

  • Поверх

    16/16

  • Лоджія Лоджія

Филиал:

вул. Інглезі, 2в, офіс 1033

Опис об'екту

28906 Продається стильна двокімнатна квартира в новому сучасному житловому комплексі на Таїрова - районі з розвиненою інфраструктурою та зручною транспортною розв'язкою. Квартира з якісним ремонтом, виконаним у спокійному, універсальному стилі, що не втратить актуальності з часом. Правильне класичне планування робить простір максимально комфортним та функціональним для життя. Простора кухня-вітальня площею 18,5 м² стане центром сімейних зустрічей та затишних вечорів. Дві великі світлі кімнати забезпечують комфорт та особистий простір кожному члену сім'ї, з кожної кімнати є вихід на засклений балкон, що додає квартирі світла та додаткових зон для відпочинку чи зберігання. Санвузол суміщений, виконаний акуратно та сучасно. Квартира повністю укомплектована меблями та побутовою технікою, що дозволяє заїхати та жити без додаткових вкладень та одразу почуватися як удома. Житловий комплекс оснащений власним генератором, тому навіть при відключеннях електроенергії у будинку є опалення та вода, працюють ліфти та забезпечено освітлення місць загального користування. Територія комплексу закрита та охороняється, ведеться цілодобове відеоспостереження, що створює високий рівень безпеки та спокою для мешканців. Це відмінний варіант для сім'ї, яка цінує комфорт, надійність та безпечне середовище для життя в одному із найбільш затребуваних районів міста.

Поділитися у соцмережах