1-кімнатна квартира, 51.60 м2

Прохоровская вулиця, Хаджибейський (Малиновський) район

Переглянути інші пропозиції

ID 28841

Тип житла будинок готовий
Кількість кімнат 1
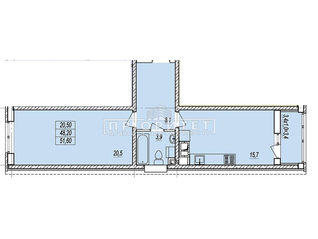
Загальна площа 51.60 кв.м.
Поверх 3
Поверхів в будинку 16
Матеріал будови керамічний блок
Тип будинку Новий будинок
Новобудови Житловий комплекс "Прохоровский квартал"
Стан квартири від будівельників
Висота стелі 3.00 м
Опалення дахова котельня
49 500 у.е.
2 128 500 ₴
  • usd
  • uah

Параметри квартири

  • Загальна

    51.60 м2

  • Житлова пл.:

    20.50 м2

  • Кухня:

    15.70 м2

  • Поверх

    3/16

  • Лоджія Лоджія

Филиал:

Відділ Новобудов

Опис об'екту

ID 28841

Увага! У продажу квартира у зданому будинку без витрат на оформлення! Просторе планування, двостороннє, з кухні є лоджія. Стан від будівельників дозволить зробити ремонт під себе.

Комплекс знаходиться в колоритному районі Одеси – на Молдованці та оточений величезною кількістю місць для відпочинку та дозвілля. Торгові центри, школи, дитячі садки, кафе, ресторани, фітнес-зали. І все це знаходиться у кроковій доступності!

Можна за держ. програм.

Телефонуйте! Ходімо дивитися.

Поділитися у соцмережах