2-комнатная квартира, 60.57 м2

Строительная улица (Лиманка), Киевский район

Посмотреть другие предложения

ID 9589

Тип жилья строящийся дом
Количество комнат 2
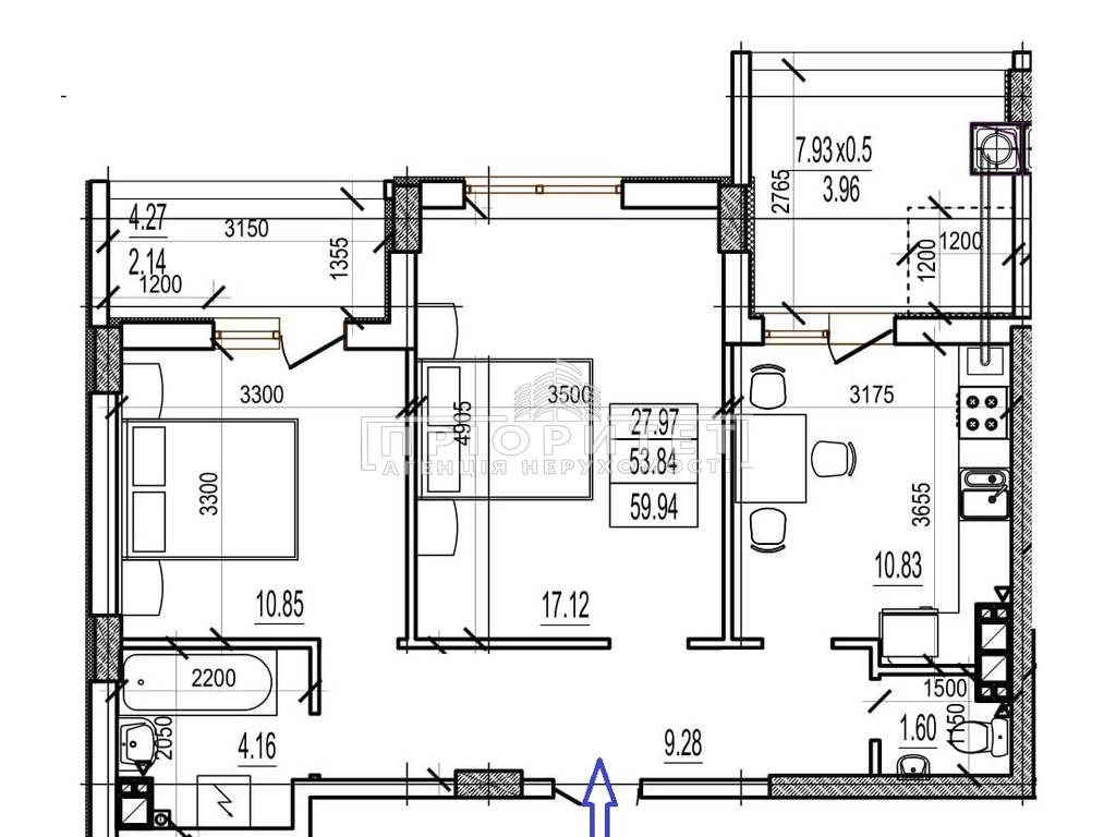
Общая площадь 60.57 кв.м.
Этаж 1
Этажей в доме 7
Материал постройки монолитно-каркасный
Тип дома новострой
Новострой Жилой комплекс "Розенталь"
Состояние квартиры от строителей
Высота потолков 2.80 м
Отопление крышная котельная
45 428 у.е.
1 726 264 ₴
  • usd
  • uah

Параметры квартиры

  • Общая

    60.57 м2

  • Жилая пл.:

    28.00 м2

  • Кухня:

    11.80 м2

  • Этаж

    1/7

  • Лоджия Лоджия

Филиал:

Отдел Новостроя

Описание объекта

ID - 9589

Жилой Комплекс для комфортной жизни и отдыха!  В одном из живописных уголков, откуда открывается вид на прекрасные закаты.  На большой территории расположились 15 секций по 7 этажей, вокруг которых раскинулись зеленые насаждения, вымощены аллеи и оборудованы зоны отдыха. Для детей обустроены детские площадки, а в ухоженных зонах отдыха можно проводить время всей семьей.

Планировка квартиры, в которую влюбляешься с первого просмотра. Не верите, звоните - пойдем смотреть. И еще - есть возможность рассрочки. Интересно?!

Поделитесь в соцсетях