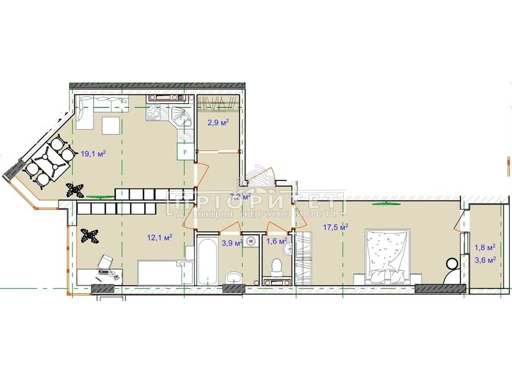
2-комнатная квартира, 67.10 м2

Академика Вильямса улица, Киевский район

Вернуться к подбору

ID 8802

Тип жилья строящийся дом
Количество комнат 2
Общая площадь 67.10 кв.м.
Этаж 12
Этажей в доме 17
Материал постройки монолитно-каркасный
Тип дома новострой
Новострой Микрорайон "Таировские Сады"
Состояние квартиры от строителей
Высота потолков 2.80 м
Отопление крышная котельная
56 364 у.е.
2 141 832 ₴
  • usd
  • uah

Параметры квартиры

  • Общая

    67.10 м2

  • Жилая пл.:

    29.60 м2

  • Кухня:

    19.10 м2

  • Этаж

    12/17

  • Лоджия Лоджия

Филиал:

ул. Сегедская, 12

Описание объекта

id 8802    Ваше здоровье и комфорт, что может быть важнее?

Квартира в стремительно развивающемся микрорайоне на Таирова.  Комплекс расположен в экологически чистом районе, внутри квартала, удален от загазованных улиц.  Это место, где забываешь городскую суету, не покидая при этом пределов города. В шаговой доступности супермаркеты, магазины, бутики, школа, детский сад, детская школа развития. Транспортное сообщение в любой район города. Крышная котельная. Закрытый двор с лаунж- зонами и детской площадкой. Все для жизни в комфорте!

Квартира просторной планировки, двухсторонняя, общая площадь 71,7кв. кв.м.  Благодаря своему первозданному виду, Вы сможете воплотить все свои дизайнерские идеи. .

 Возможность покупки в рассрочку. 

Никаких переплат, 0 % комиссия! Звоните!  Приходите! Расскажем, покажем, выберем для Вас

 

Поделитесь в соцсетях