2-комнатная квартира, 62.39 м2

Фонтанская дорога, Приморский район

Посмотреть другие предложения

ID 29421

Тип жилья строящийся дом
Количество комнат 2
Общая площадь 62.39 кв.м.
Этаж 10
Этажей в доме 11
Материал постройки керамический блок
Тип дома Новый дом
Новострой Жилой комплекс "Derby Style House"
Состояние квартиры от строителей
Высота потолков 3.00 м
Отопление крышная котельная
81 107 у.е.
3 487 601 ₴
  • usd
  • uah

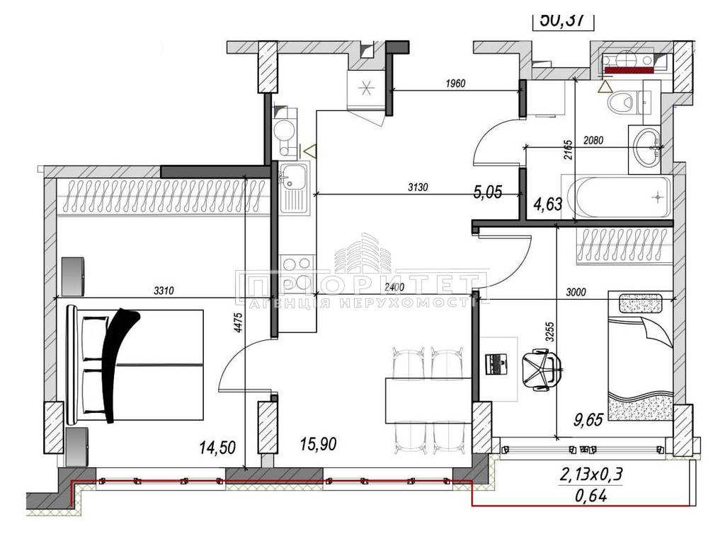
Параметры квартиры

  • Общая

    62.39 м2

  • Жилая пл.:

    24.15 м2

  • Кухня:

    15.90 м2

  • Этаж

    10/11

  • Балкон Балкон

Филиал:

ул. Сегедская, 12

Описание объекта

ID 29421    Ваше идеальное место для жизни

Квартира в престижном жилом комплексе. ЖК Derby House — выбор тех, кто ценит качество и эстетику. Кирпичные дома, европейские стандарты строительства, дизайнерские фасады и современные решения делают этот комплекс достойной альтернативой более дорогим объектам.  Современная и комфортная планировка квартиры. Состояние от строителей -  чистовая стяжка пола, бронированная дверь, не требующая замены, качественные, энергосберегающие окна. Высота потолка - 3 м. Обустроенная, охраняемая придомовая территория. Подземный паркинг. Отличное месторасположение! Зелёный район возле парка, с хорошо развитой инфраструктурой.
            Отличное предложение для тех кто любит Большой Фонтан. В продаже квартира  по цене застройщика без расходов на оформление!

 

Поделитесь в соцсетях