2-комнатная квартира, 56.34 м2

Фонтанская дорога, Приморский район

Посмотреть другие предложения

ID 29418

Тип жилья строящийся дом
Количество комнат 2
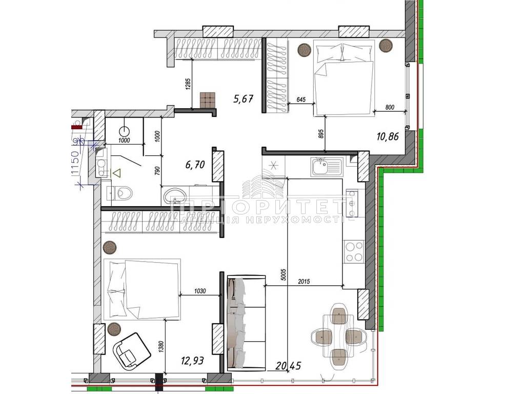
Общая площадь 56.34 кв.м.
Этаж 8
Этажей в доме 11
Материал постройки керамический блок
Тип дома Новый дом
Новострой Жилой комплекс "Derby Style House"
Состояние квартиры от строителей
Высота потолков 3.00 м
Отопление крышная котельная
98 595 у.е.
4 239 585 ₴
  • usd
  • uah

Параметры квартиры

  • Общая

    56.34 м2

  • Жилая пл.:

    23.79 м2

  • Кухня:

    20.45 м2

  • Этаж

    8/11

Филиал:

Отдел Новостроя

Описание объекта

ID 29418

Современная архитектура в стиле лофт, кирпичные фасады, панорамное остекление и террасы — ЖК Derby House выгодно выделяется среди новостроек Фонтана.

Квартира продуманной  планировки — главный плюс, легко адаптируются под любой стиль жизни: для семьи, для пары, под аренду. Ничего лишнего, нет раздутых метражей- две отдельные спальни и большая кухня- гостиная. А большие панорамные окна,  наполняющие квартиру солнечным светом и высокие потолки до 3 метров создают ощущение пространства и свободы.  

Тишина и комфорт внутри, динамика города — за пределами комплекса. ЖК Derby House — это стиль жизни, который выбирают.
 

Поделитесь в соцсетях