2-комнатная квартира, 65.00 м2

Краснова улица, Приморский район

Посмотреть другие предложения

ID 29374

Тип жилья сданный дом
Количество комнат 2
Общая площадь 65.00 кв.м.
Этаж 21
Этажей в доме 24
Материал постройки монолитно-каркасный
Тип дома Новый дом
Новострой Жилой комплекс "60 Жемчужина"
Состояние квартиры с ремонтом
Высота потолков 2.80 м
Отопление крышная котельная
135 000 у.е.
5 805 000 ₴
  • usd
  • uah

Параметры квартиры

  • Общая

    65.00 м2

  • Жилая пл.:

    30.00 м2

  • Кухня:

    20.00 м2

  • Этаж

    21/24

  • Балкон Балкон

Филиал:

ул. Инглези, 2в, офис 1033

Описание объекта

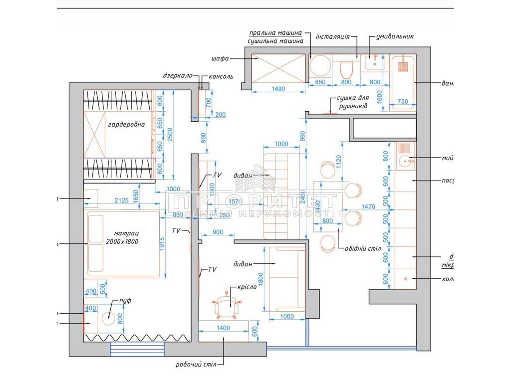
29374 Продаётся просторная двухкомнатная квартира в современном жилом комплексе «60 Жемчужина» на улице Краснова. Это отличный вариант для комфортной жизни в новом доме с продуманной инфраструктурой и высоким уровнем безопасности. Квартира с новым качественным ремонтом, полностью готова к заселению - вам остаётся только добавить финальные штрихи под свой вкус. Планировка продумана до мелочей: две отдельные комнаты обеспечивают приватность и удобство для семьи, а кухня-гостиная с выходом на балкон создаёт просторное и светлое общее пространство для отдыха и приёма гостей. Также предусмотрена отдельная гардеробная, которая позволит удобно организовать хранение вещей без лишней мебели в комнатах. Квартира полностью укомплектована всей необходимой техникой и мебелью, всё новое и современное. Во второй комнате остаётся возможность обустроить пространство по своему желанию - установить кровать, диван или сделать кабинет.Жилой комплекс от Kadorr на Краснова - это новый формат комфортной городской жизни. Закрытая охраняемая территория, круглосуточное видеонаблюдение и контроль доступа обеспечивают безопасность и спокойствие жильцов. Во дворе обустроены зоны отдыха, детские и спортивные площадки, а также есть всё необходимое для повседневной жизни: магазины, сервисы и удобная транспортная развязка. Этот район активно развивается и уже стал одним из самых востребованных в городе благодаря сочетанию новостроек, инфраструктуры и удобного расположения. Квартира подойдёт как для личного проживания, так и для выгодной инвестиции - современный комплекс, удобная планировка и полная готовность к жизни делают её привлекательным вариантом на рынке недвижимости.

Поделитесь в соцсетях