1-комнатная квартира, 50.70 м2

Ак.Сахарова, Пересыпский (Суворовский) район

Посмотреть другие предложения

ID 29373

Тип жилья вторичка
Количество комнат 1
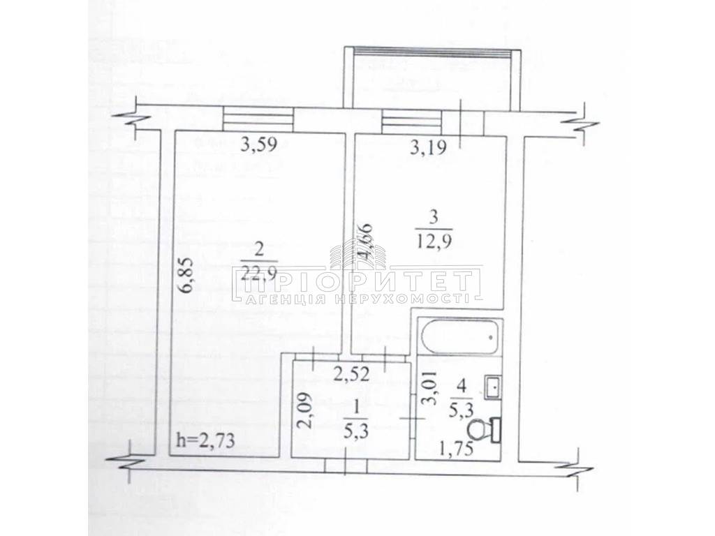
Общая площадь 50.70 кв.м.
Этаж 10
Этажей в доме 11
Материал постройки Газобетон
Тип дома Новый дом
Состояние квартиры с ремонтом
Высота потолков 2.70 м
Отопление крышная котельная
50 500 у.е.
2 171 500 ₴
  • usd
  • uah

Параметры квартиры

  • Общая

    50.70 м2

  • Жилая пл.:

    22.90 м2

  • Кухня:

    12.90 м2

  • Этаж

    10/11

  • Лоджия Лоджия

Филиал:

ул. Инглези, 2в, офис 1033

Описание объекта

29373 Продаётся просторная и светлая квартира в новом кирпичном доме рядом с морем - идеальный вариант для тех, кто хочет сразу заехать и жить без лишних хлопот. В квартире выполнен современный ремонт 2022 года, при этом после завершения работ в ней никто не проживал, поэтому всё абсолютно новое и в отличном состоянии. Продуманная планировка создаёт ощущение комфорта и уюта: просторная кухня площадью 12,9 м² имеет выход на балкон, а отдельная комната дополнена удобным альковом и полноценным рабочим пространством. Квартира полностью укомплектована новой техникой, включая кондиционер, бойлер, стиральную машину, холодильник, духовку и комбинированную плиту с газовой и электрической поверхностью. На балконе установлена практичная наружная сушилка из нержавеющей стали, а входные двери обеспечивают высокий уровень безопасности. Дополнительным преимуществом станет красивый вид на море, который будет радовать каждый день. Дом построен в 2021 году из кирпича, что обеспечивает хорошую тепло- и шумоизоляцию, высота потолков составляет 2,7 метра. Для удобства жильцов предусмотрен тамбур на четыре квартиры, работают два лифта - пассажирский и грузовой. В доме есть подземный паркинг и кладовые помещения. Благодаря горизонтальной системе отопления у вас будет возможность установить теплосчётчик и контролировать расходы. Район отлично подходит для жизни: в пешей доступности находятся детский сад, школа, магазины и конечная остановка транспорта. До моря можно дойти всего за 15 минут, что делает эту квартиру особенно привлекательной как для жизни, так и для инвестиций.

Поделитесь в соцсетях