1-комнатная квартира, 38.27 м2

Строительная улица (Лиманка), Киевский район

Посмотреть другие предложения

ID 29330

Тип жилья сданный дом
Количество комнат 1
Общая площадь 38.27 кв.м.
Этаж 1
Этажей в доме 7
Материал постройки Газобетон
Тип дома Новый дом
Новострой Жилой комплекс "Розенталь"
Состояние квартиры от строителей
Высота потолков 2.80 м
Отопление крышная котельная
30 616 у.е.
1 316 488 ₴
  • usd
  • uah

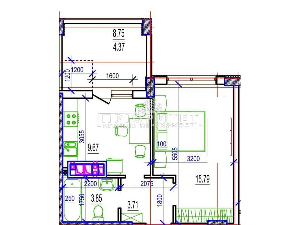
Параметры квартиры

  • Общая

    38.27 м2

  • Жилая пл.:

    15.79 м2

  • Кухня:

    9.76 м2

  • Этаж

    1/7

  • Лоджия Лоджия

Филиал:

Отдел Новостроя

Описание объекта

ID 29330

Если вы устали от городского шума — квартира в ЖК «Розенталь» станет идеальным решением. Комплекс в 5 минутах от  Одессы, представляет собой новые 7-этажные дома с газом и комфортной средой для жизни.

Планировка - мечта! Изюминка - большая, застекленная 9м лоджия, которая при необходимости может быть второй спальней. Состояние - все комуникации заведены в квартиру, стены уже отшпатлеваны. А дальше - все в ваших руках. " Глаза бояться- руки  делают" . Своя квартира - есть своя. 
 

Поделитесь в соцсетях