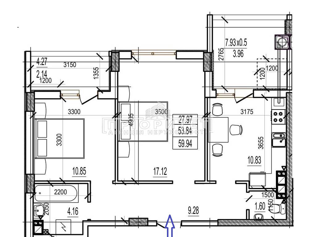
2-комнатная квартира, 59.94 м2

Строительная улица (Лиманка), Киевский район

Посмотреть другие предложения

ID 29323

Тип жилья строящийся дом
Количество комнат 2
Общая площадь 59.94 кв.м.
Этаж 4
Этажей в доме 7
Материал постройки Газобетон
Тип дома Новый дом
Новострой Жилой комплекс "Розенталь"
Состояние квартиры от строителей
Высота потолков 2.80 м
Отопление крышная котельная
44 955 у.е.
1 933 065 ₴
  • usd
  • uah

Параметры квартиры

  • Общая

    59.94 м2

  • Жилая пл.:

    28.00 м2

  • Кухня:

    10.83 м2

  • Этаж

    4/7

  • Лоджия Лоджия

Филиал:

ул. Сегедская, 12

Описание объекта

ID - 29323

ЖК «Розенталь» — новострой в пригороде Одессы, где каждая деталь продумана для комфортной жизни. Невысокие дома, газификация, уютная атмосфера и оптимальная  планировка - идеальный вариант. Квартира  в состоянии от строителей — полная свобода для дизайна.

Жилой комплекс для комфортной жизни и отдыха!  В одном из живописных уголков, откуда открывается вид на прекрасные закаты.  На большой территории расположились 15 секций по 7 этажей, вокруг которых раскинулись зеленые насаждения, вымощены аллеи и оборудованы зоны отдыха. Для детей обустроены детские площадки, а в ухоженных зонах отдыха можно проводить время всей семьей.

Квартира, в которую влюбляешься с первого просмотра. Не верите, звоните - пойдем смотреть. И еще - есть возможность рассрочки. Интересно?!

Поделитесь в соцсетях