1-комнатная квартира, 35.39 м2

Строительная улица (Лиманка), Киевский район

Посмотреть другие предложения

ID 29315

Тип жилья строящийся дом
Количество комнат 1
Общая площадь 35.39 кв.м.
Этаж 3
Этажей в доме 7
Материал постройки Газобетон
Тип дома Новый дом
Новострой Жилой комплекс "Розенталь"
Состояние квартиры от строителей
Высота потолков 2.80 м
Отопление крышная котельная
27 250 у.е.
1 171 750 ₴
  • usd
  • uah

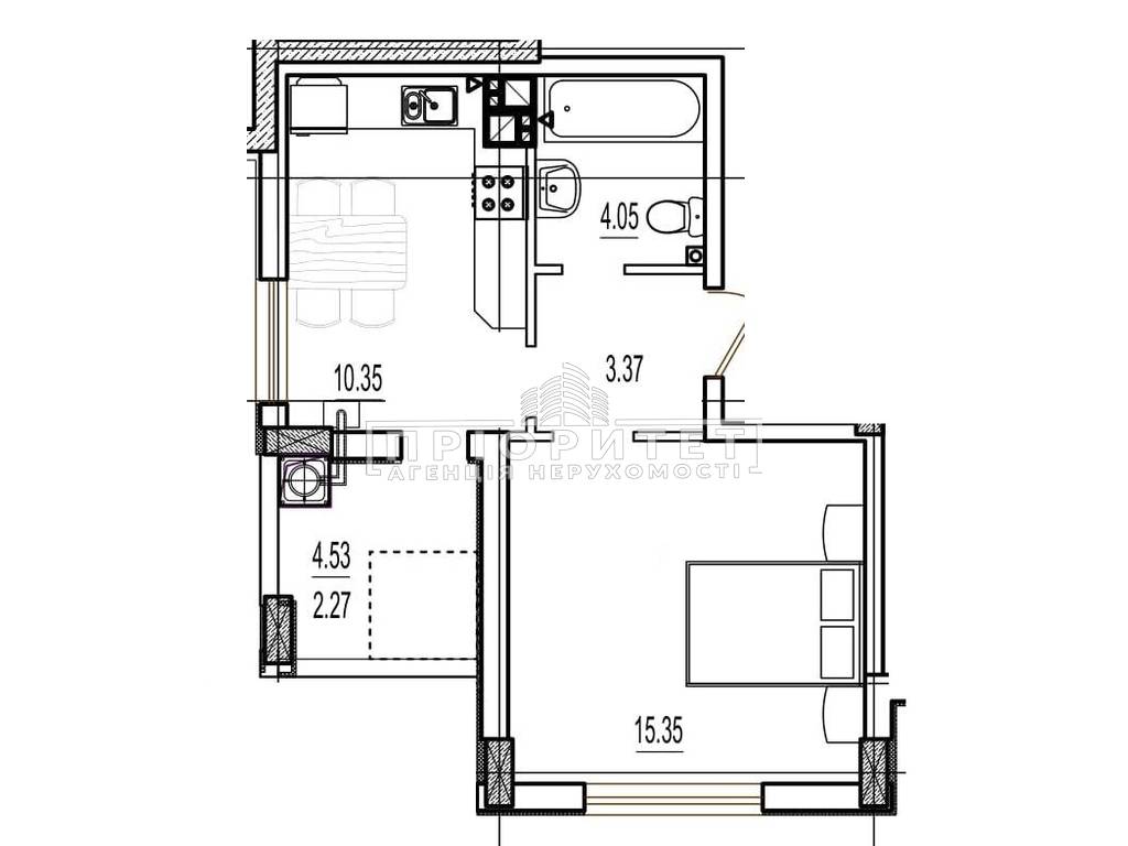
Параметры квартиры

  • Общая

    35.39 м2

  • Жилая пл.:

    15.35 м2

  • Кухня:

    10.35 м2

  • Этаж

    3/7

Филиал:

ул. Сегедская, 12

Описание объекта

ID - 29315

Живите в тишине, дышите свежим воздухом и при этом оставайтесь рядом с городом . ЖК «Розенталь» — это современные дома, газ, уютные дворы и комфортный формат малоэтажной застройки. Однокомнатная квартира в новом ЖК комфорт класса. Приборы учета (счетчики): газ, электричество, вода.
Окна и двери на лоджию: металлопластиковые. Лоджия застеклена. Входная дверь: бронированная. Пожарная сигнализация.
Двор: закрытая территория. Дом утепленный.На каждую секцию автономная газовая котельная.
Для предварительного подогрева воды на крыше установлены системы солнечных батарей, что обеспечивает 30% экономии газа и снижение тарифа на отопление и горячую воду. Газовый генератор для бесперебойной работы бесшумного, скоростного лифта, подкачки воды и освещения парадных в случае отключения электричества.

Поделитесь в соцсетях