1-комнатная квартира, 41.00 м2

Краснова улица, Приморский район

Посмотреть другие предложения

ID 29068

Тип жилья сданный дом
Количество комнат 1
Общая площадь 41.00 кв.м.
Этаж 3
Этажей в доме 24
Материал постройки монолитно-каркасный
Тип дома Новый дом
Новострой Жилой комплекс "68 Жемчужина"
Состояние квартиры с ремонтом
Высота потолков 2.80 м
Отопление крышная котельная
77 000 у.е.
3 311 000 ₴
  • usd
  • uah

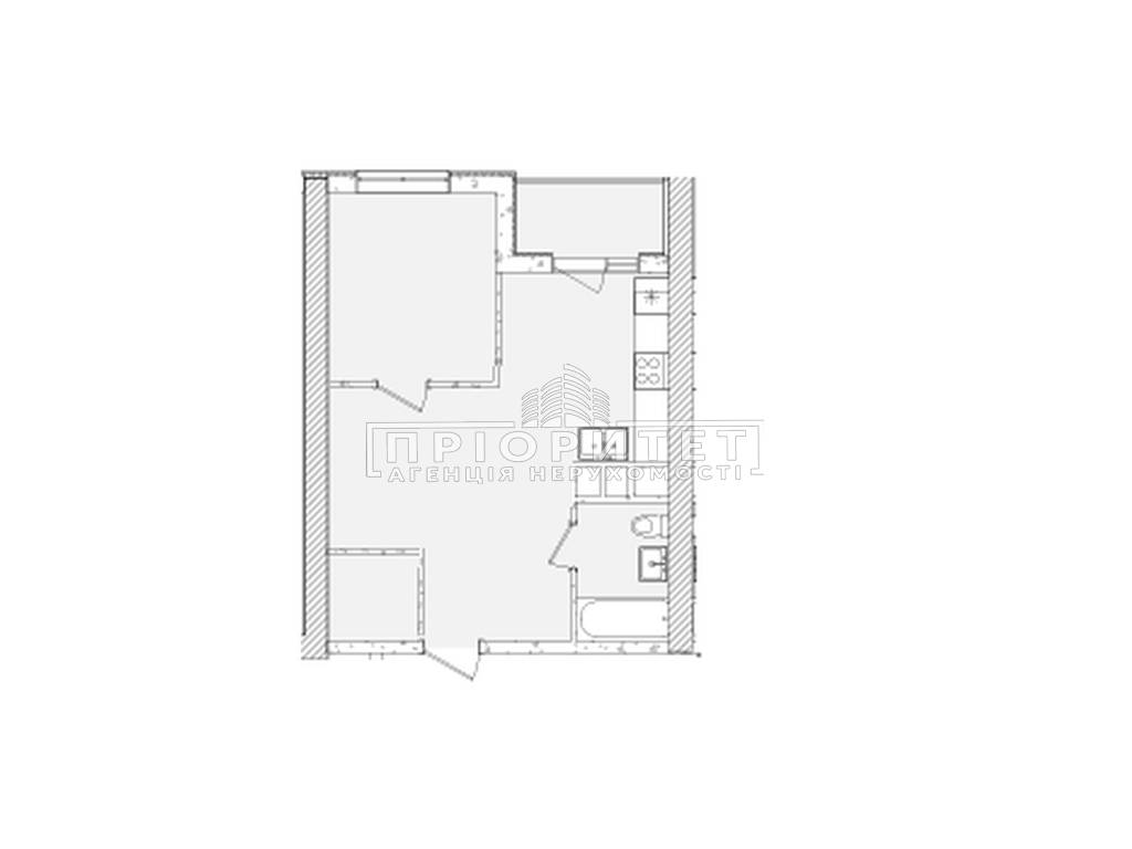
Параметры квартиры

  • Общая

    41.00 м2

  • Жилая пл.:

    20.00 м2

  • Кухня:

    14.00 м2

  • Этаж

    3/24

  • Балкон Балкон

Филиал:

ул. Инглези, 2в, офис 1033

Описание объекта

ID 29068 Продаётся новая уютная однокомнатная квартира в одном из самых востребованных жилых комплексов Одессы. Это современное и гармоничное пространство, созданное для комфортной жизни, где каждая деталь продумана для удобства и уюта. Квартира полностью укомплектована мебелью и техникой, что позволяет сразу заехать и наслаждаться новым домом без дополнительных вложений и хлопот. Окна выходят во двор, обеспечивая тишину и спокойную атмосферу вдали от городского шума. Из кухни предусмотрен выход на балкон - приятное место для утреннего кофе или отдыха в конце дня. Светлая, аккуратная и функциональная, эта квартира станет отличным выбором как для личного проживания, так и для выгодной инвестиции в одном из лучших комплексов города.

Поделитесь в соцсетях