1-комнатная квартира, 42.40 м2

Ковалевского спуск, Приморский район

Посмотреть другие предложения

ID 29036

Тип жилья сданный дом
Количество комнат 1
Общая площадь 42.40 кв.м.
Этаж 12
Этажей в доме 17
Материал постройки монолитно-каркасный
Тип дома Новый дом
Новострой Жилой комплекс "Акварель 3"
Состояние квартиры от строителей
Высота потолков 2.70 м
Отопление крышная котельная
43 000 у.е.
1 849 000 ₴
  • usd
  • uah

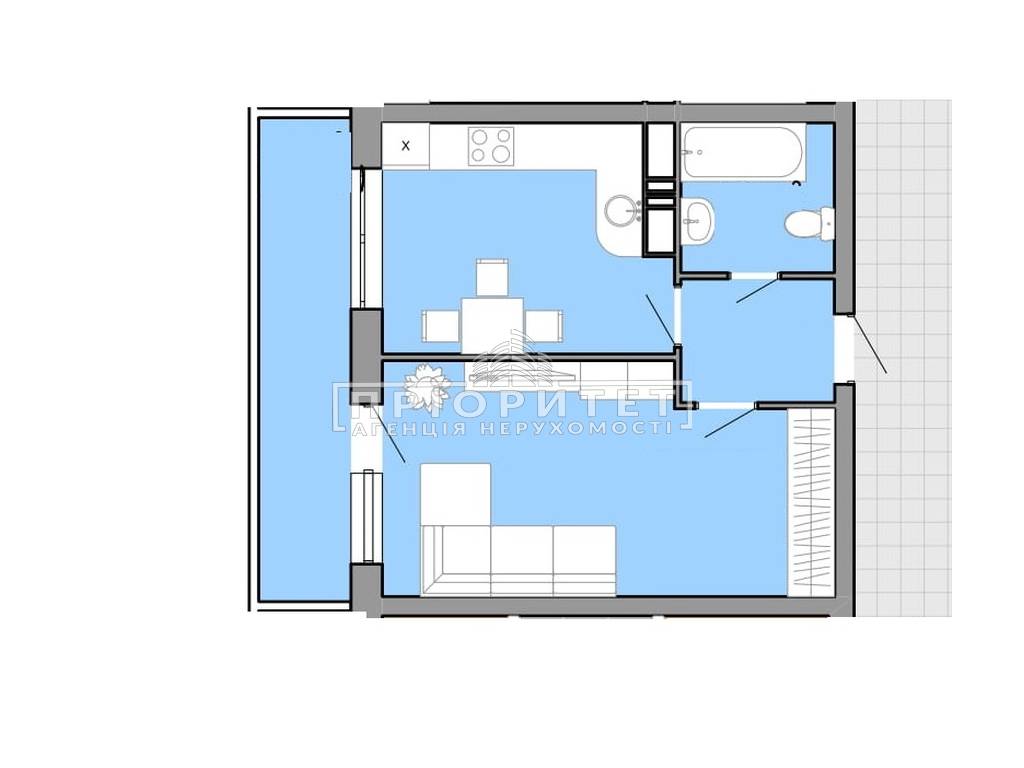
Параметры квартиры

  • Общая

    42.40 м2

  • Жилая пл.:

    20.50 м2

  • Кухня:

    15.00 м2

  • Этаж

    12/17

  • Лоджия Лоджия

Филиал:

ул. Инглези, 2в, офис 1033

Описание объекта

ID 29036 Жилой комплекс расположен в центральной части города. Отличается удобным расположением, поскольку в непосредственной близости от него есть: школа, больница, ТРЦ, рынок, магазины, парковые зоны, транспортная развязка, детский сад, подземный паркинг. Дом сдан и уже заселяется. Состояние квартиры - от строителей, можно реализовать любой ремонт. В квартире есть стяжка, шумоизолирующие стеклопакеты, радиаторы, заведены все коммуникации, установлена бронированная дверь. Большая лоджия на всю квартиру с выходом на кухню и в комнату. Просторные красивые холлы, надежные лифты, продуманные планировки. Звоните! Все покажем и расскажем.

Поделитесь в соцсетях