1-комнатная квартира, 51.60 м2

Прохоровская улица, Хаджибейский (Малиновский) район

Посмотреть другие предложения

ID 28842

Тип жилья сданный дом
Количество комнат 1
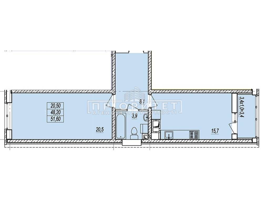
Общая площадь 51.60 кв.м.
Этаж 13
Этажей в доме 16
Материал постройки керамический блок
Тип дома Новый дом
Новострой Жилой комплекс "Прохоровский квартал"
Состояние квартиры от строителей
Высота потолков 3.00 м
Отопление крышная котельная
47 472 у.е.
1 803 936 ₴
  • usd
  • uah

Параметры квартиры

  • Общая

    51.60 м2

  • Жилая пл.:

    20.50 м2

  • Кухня:

    15.70 м2

  • Этаж

    13/16

  • Лоджия Лоджия

Филиал:

Отдел Новостроя

Описание объекта

ID 1428842

Интересный вариант просторной квартиры в новом  доме. 

Дом сдан в декабре  2025г.  Квартира в состоянии от строителей и можно делать ремонт на свой вкус сразу после покупки. Двухсторонняя  планировка Отопление - крышная котельная, всегда тепло и есть горячая вода.  Все коммуникации подведены и установлены счетчики, входные двери Саган, металлопластиковые окна с энергосберегающими стеклами. 

Дом построен добротно для комфортной жизни: высота потолков 3м, стены -керамоблок с утеплением, светлые парадные, цифровой домофон и т.д. Управление - ОСМД. Расположение - второй ряд домов от дороги. 

Звоните и идемте смотреть.

Поделитесь в соцсетях