2-комнатная квартира, 59.90 м2

Педагогическая улица, Приморский район

Посмотреть другие предложения

ID 28714

Тип жилья сданный дом
Количество комнат 2
Общая площадь 59.90 кв.м.
Этаж 6
Этажей в доме 6
Материал постройки керамический блок
Тип дома Новый дом
Новострой Клубный дом "GRAF на Педагогической"
Состояние квартиры с ремонтом
Высота потолков 3.40 м
Отопление крышная котельная
85 000 у.е.
3 230 000 ₴
  • usd
  • uah

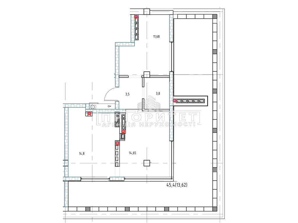
Параметры квартиры

  • Общая

    59.90 м2

  • Жилая пл.:

    26.50 м2

  • Кухня:

    14.65 м2

  • Этаж

    6/6

Филиал:

Отдел Новостроя

Описание объекта

ID 28714  2 комнатная квартира с большой террасой в новом кирпичном клубном доме на Фонтане

Просторная квартира с двумя спальнями  и кухней-гостиной .  Высокие потолки 3.4 метра. Большая терраса 45м . На этаже всего 2квартиры. Лифт связывает все этажи с подземным паркингом.

В доме всего 22 квартир, и у каждой квартиры индивидуальная планировка. У вас будет мало соседей, в вашем доме всегда будет царить уют и спокойствие. 

Квартира с ремонтом, частично с мебелью!

Десять минут прогулочным шагом до Аркадии!

Звоните!

Поделитесь в соцсетях