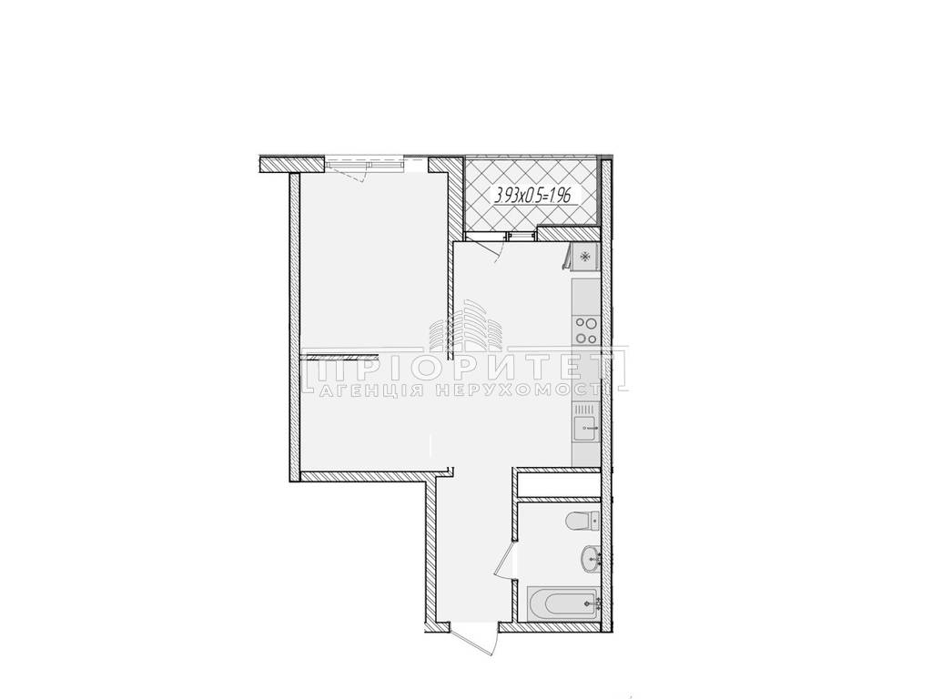
1-комнатная квартира, 42.30 м2

Краснова улица, Приморский район

Посмотреть другие предложения

ID 28611

Тип жилья сданный дом
Количество комнат 1
Общая площадь 42.30 кв.м.
Этаж 9
Этажей в доме 24
Материал постройки монолитно-каркасный
Тип дома Новый дом
Новострой Жилой комплекс "66 Жемчужина"
Состояние квартиры с ремонтом
Высота потолков 2.80 м
Отопление крышная котельная
83 000 у.е.
3 154 000 ₴
  • usd
  • uah

Параметры квартиры

  • Общая

    42.30 м2

  • Жилая пл.:

    18.00 м2

  • Кухня:

    15.00 м2

  • Этаж

    9/24

  • Балкон Балкон

Филиал:

ул. Инглези, 2в, офис 1033

Описание объекта

ID 28611 Новый Жемчужный квартал на Краснова. Однокомнатная квартира классной планировки с балконом. Квартира спланирована в кухню, гостиную и комнату. Санузел совмещен, установлен душ.  Ремонт только закончили, после ремонта никто не жил. Вся мебель, техника, полная комплектация. Своя большая закрытая территория с зеленой зоной, детской и спортивной площадкой, вместительным подземным паркингом. Охрана, консьерж сервис, скоростные бесшумные лифты. Район с отличной транспортной развязкой, до центра города 10 минут. Окна выходят на ипподром. Отличный вариант для жизни, звоните.

Поделитесь в соцсетях